1 of 13
€320.900
Los Montesinos
New Build Villas in La Herrada, Los Montesinos
Introducing a stunning new build project featuring a total of 11 contemporary villas, beautifully designed over two levels and offering breathtaking views of the salt lakes. Nestled in the vibrant community of La Herrada, Los Montesinos, these spacious three-bedroom villas provide the perfect blend of comfort and tranquillity.
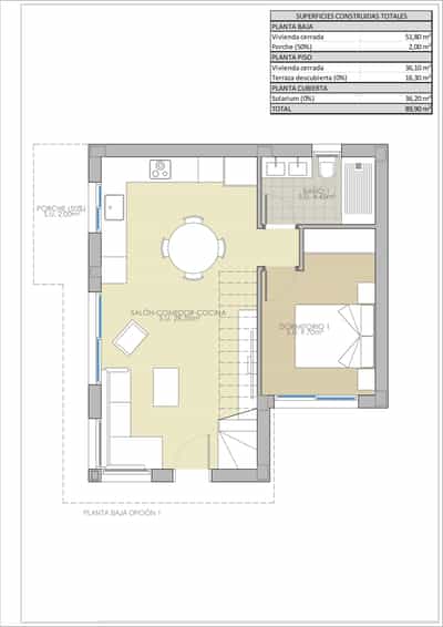
Ground Floor Layout:
Upon entering, you'll discover a bright and expansive living room seamlessly connected to an open kitchen, ideal for entertaining. The ground floor also includes a generously sized bedroom with built-in wardrobes, a well-appointed bathroom, and a convenient toilet that can double as a laundry room.
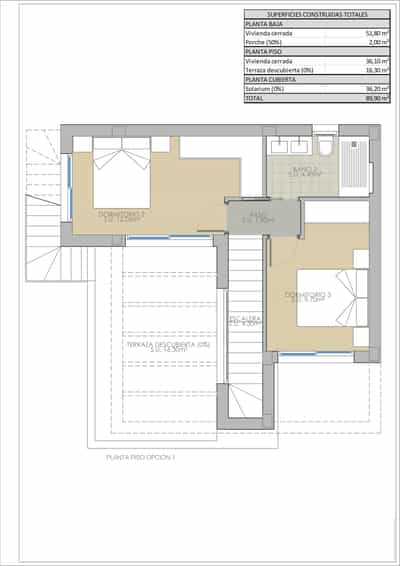
Upper Floor Features:
The upper level is home to two additional spacious bedrooms, each fitted with built-in wardrobes and access to a sunny terrace. This terrace is perfect for sun loungers and outdoor furniture, offering a delightful space to relax and enjoy the sunshine. A fully tiled bathroom with a shower completes this floor.
Optional Private Roof Terrace:
For those seeking extra outdoor space, there’s an option to add a private roof terrace of approximately 40 square meters. This versatile area can be transformed into your personal oasis with a chill-out zone, additional sunbeds, a jacuzzi, and an outdoor kitchen, all complemented by stunning views of the surrounding landscape and salt lakes.
Modern Amenities:
Each villa comes equipped with modern features including underfloor heating and stylish shower screens in the bathrooms, electric blinds in the bedrooms, a complete white goods package, pre-installed A/C through ducts, and a motorized gate leading to the parking area.
Prime Location:
Enjoy the convenience of being close to essential services such as supermarkets, bars, and restaurants. The charming town of Los Montesinos is just a few minutes' drive away, offering a taste of authentic Spanish life. Additionally, you’ll find the fabulous beaches of Guardamar del Segura, La Mata, and Torrevieja within a short drive, along with several golf courses and shopping centres.
This project is an ideal opportunity for those looking to invest in a peaceful yet well-connected lifestyle in a picturesque setting. Don’t miss out on the chance to make one of these beautiful villas your own!
Amenities
Interested?
VILLA 42 is in high demand!. Contact Oksana today to secure your exclusive viewing
Nearby Properties
VILLA 44
Los Montesinos
New Build Villas in La Herrada, Los MontesinosIntroducing a stunning new build project featuring a total of 11 cont...
€325.900
View
VILLA 42
Los Montesinos
New Build Villas in La Herrada, Los MontesinosIntroducing a stunning new build project featuring a total of 11 cont...
€320.900
View
VILLA 35
Los Montesinos
New Build Villas in La Herrada, Los MontesinosIntroducing a stunning new build project featuring a total of 7 conte...
€399.900
View